Appartement 1 chambre à Belvaux

vendu

Description

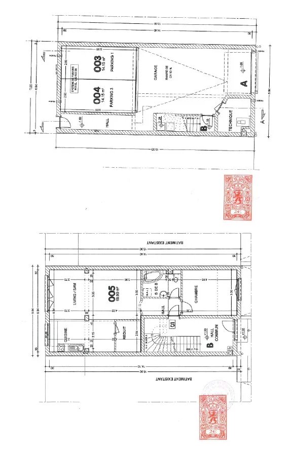
L'agence COPA IMMOBILIERE S.A R.L. vous propose de découvrir cet appartement moderne et lumineux au rez-de-chaussée d’une petite résidence à 2 unités, idéalement situé à quelques pas du quartier dynamique de Belval à Esch-sur-Alzette. Profitez d'une vie urbaine moderne, avec une facilité d'accès aux infrastructures et services de ce secteur en pleine expansion. Caractéristiques de l'appartement : · Superficie de 70 m2 · Cuisine équipée ouverte sur le séjour · Débarras / buanderie · Une chambre spacieuse · Vue dégagée sur le jardin et le Parc de Belval · Salle de bains moderne et fonctionnelle (2023) · Un emplacement intérieur spacieux · Accès direct aux transports publics (arrêt de bus et de train Belval-Lycée à 1 minute à pied, ligne CFL 60 et plusieurs lignes TICE) Eléments en copropriété : · Grand jardin · Terrasse (rénovation prévue au printemps 2025) · Chaudière de 2019 entretenue annuellement · Syndicat de copropriété bénévole Les atouts de Belval et alentours : · Accès à une vie culturelle et professionnelle vibrante : Belval est un véritable pôle d'innovation et de développement, avec de nombreux centres de recherche, entreprises de haute technologie, et l’Université du Luxembourg, offrant un cadre de vie stimulant. · Commodités à portée de main : Centres commerciaux (dont le Belval Plaza), restaurants, cafés, supermarchés, écoles et crèches, maison médicale, tout est accessible à pied. · Transports en commun : Très bien desservi par les transports publics, avec les gares de Belval-Université et Belval-Lycée à quelques minutes, vous permettant de rejoindre facilement Luxembourg-Ville et les autres grandes villes. · Espaces verts et loisirs : Belval offre un cadre de vie agréable avec ses parcs, ses promenades et son accès rapide aux activités sportives et culturelles, comme les musées, le Rockhal, et plus encore. Ne manq

Caractéristiques

Localité

Belvaux

Type de bien

Appartement

Disponibilité

vendu

Surface du terrain (a)

a

Prix

559.000€

Année de construction

2016

Consommation d'énergie

/

Isolation thermique

/

Charges mensuelles

€/mois

Caution

Nb de chambres

1

Nb de salles de bain

1

Nb de toilettes

0

Surface habitable (m²)

70 m²

Emplacements intérieur

1

Emplacements extérieur

Terrasse

Balcon

Jardin

Lieux et activités à proximité

Gare

Autoroute

École

Air de jeux

Supermarché

Pharmacie

Localisation

Vous souhaitez avoir plus d'infos?

Contactez-nous